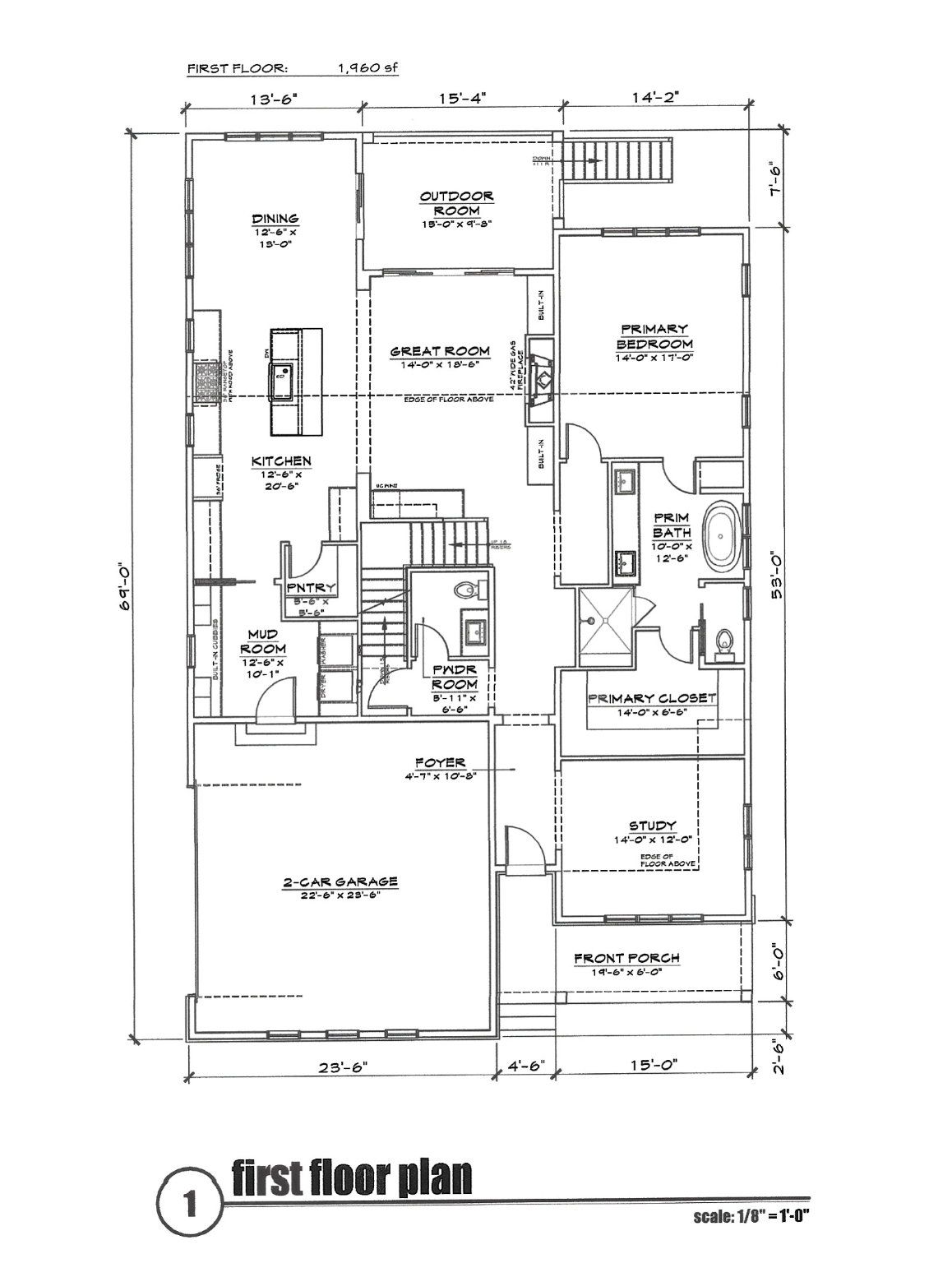
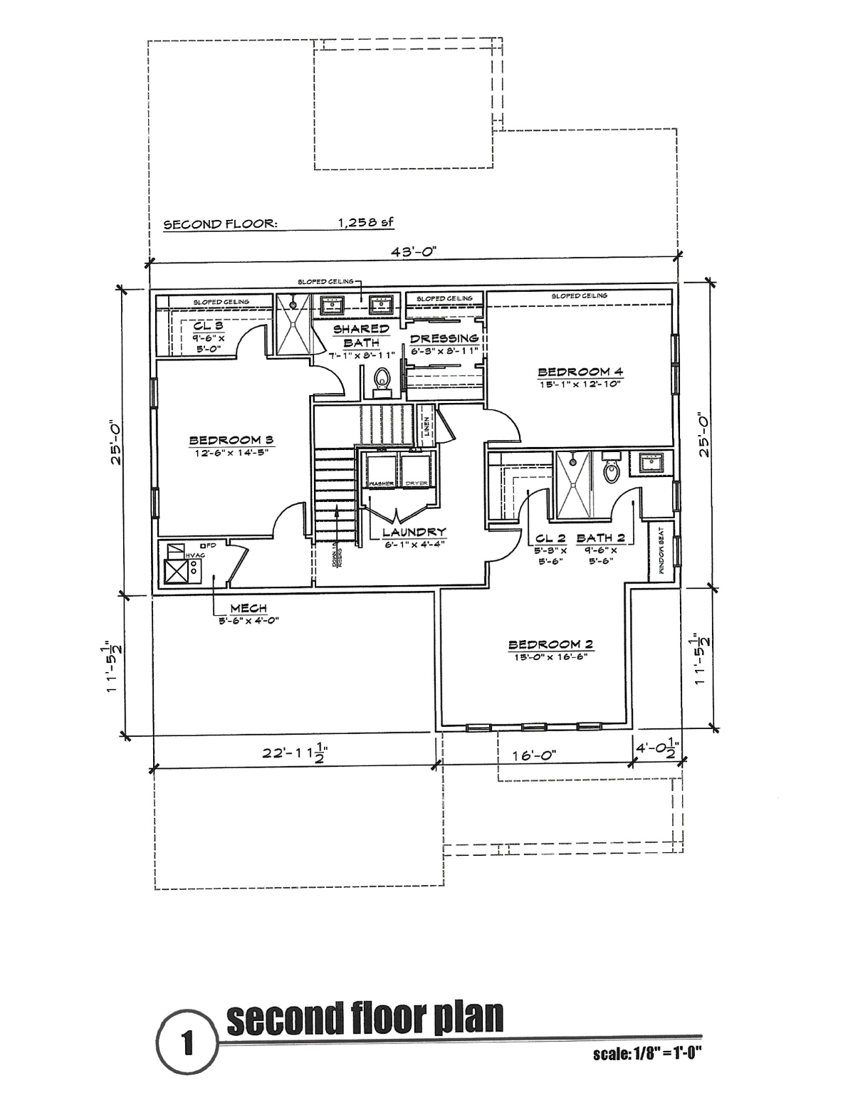
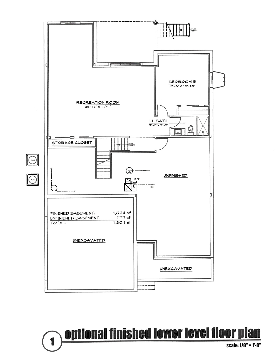
Coming Soon: 686 Brownell in Kirkwood


Property Details:

  • Total: of 4,242 square feet. 3,218 sq. ft. on the 1st & 2nd Floor with another 1,258 sq. ft. finish lower level, Story & a Half home

  • Walkout with Covered Deck, 2 car Side Entry Garage. Open Floor Plan with decorative ceilings in the Dining and Great room.

Plan Type: Delmar Plan (new plan) - Story and a half, 5 bedroom 4 & 1/2 baths

Price: To be determined

Builder Notes: Projected Completion will be late summer 2026.

Contact us for more information

View Full build features